msFaktura verfügt über ein offenes Modul zum Zeichnen. Über den Zeichnungs-Kontext wird die Programm-Oberfläche optimal an das gerade zu zeichnende Element angepasst. Zur zeit existieren Kontexte für Fenster und Türen, Rollläden und Glas
Archiv der Kategorie: Zeichnungen
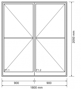
Innentüren zeichnen
msFaktura kann auch rechteckige Innentüren als Zeichnung abbilden. Wie üblich werden die Flügelmaße bemaßt. Natürlich können auch mehrflügelige Türen mit Lichtausschnitten und Sprossen gezeichnet werden. Natürlich können Innentüren auch preislich kalkuliert werden! Innentüren zeichnen weiterlesen
Insektenschutz (Fliegengitter) zeichnen
Neben Fenster und Türen kann msFaktura natürlich auch Insektenschutzelemente (Fliegengitter) maßstabsgetreu zeichnen. Insektenschutz (Fliegengitter) zeichnen weiterlesen
Glas-Schiebeanlagen & Falt-Schiebewände zeichnen

Glasschiebeanlagen verfügen meistens nur am oberen und unteren Flügelende über Flügelrahmenprofile. msFaktura zeichnet Galsschiebeanlagen mit beliebig vielen Flügeln mit 4seitiger und 3-seitiger Blendrahmenansicht. Glas-Schiebeanlagen & Falt-Schiebewände zeichnen weiterlesen
Glasscheiben zeichnen: msFaktura für Glaser

Eigentlich selbstverständlich, aber einige Fensterbauprogramme beherschen es wohl nicht: das Zeichnen von Scheiben (Glas).
msFaktura zeichnet rechteckige, vieleckige und gerundete Scheiben (Segment und Rundbogen) Glasscheiben zeichnen: msFaktura für Glaser weiterlesen

